三孩时代 大“室”所趋 | 华瑞城全生命周期户型成置业热门
扫描到手机,新闻随时看
扫一扫,用手机看文章
更加方便分享给朋友

房子是生活的容器,家庭人口结构的变化,会影响居者当下和未来的人居需求。
随着三孩时代的到来,城市家庭结构和相应的居住需求更为复杂,华科·华瑞城,洞察时代所需,以前瞻性视野精研三孩家庭居住方式和生活习惯,从户型、社区、配套等多维度出发,打造建筑面积约175-188㎡全生命周期理想人居,成就三孩时代置业热门。


常规认知中,三孩家庭模式一般为“父母+三孩”的五口之家,但从长远看,三孩家庭成员数量约为七至九人,即“父母+三孩+老人/保姆”的模式。
聚焦到户型上,必不可少的夫妻主卧和老人房,在儿童成长前期,原有大三居可勉强满足三孩家庭生活所需。但随着年龄增长,不同性别、年龄段孩子势必需要独立居住空间,甚至部分家庭会有保姆房需求,因此对三孩家庭而言,四房仅是标配,阔达五室方能更好地保证三孩家庭品质舒居生活。
华科·华瑞城建筑面积约175-188㎡五室洋房,全生命周期户型不仅为居者省去了置换成本与烦恼,在空间规划中,更以匠心为笔,为三胎时代美好人居作出了教科书式的诠释。

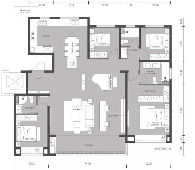
(建面约)188㎡户型图
家庭亲密有间,私属领地各自精彩。各个房间以客厅为圆心美好舒展,家人间沟通无碍且亲密有间,私属空间互不打扰,日常生活更自在。

较大约14.8米南面宽,阳光、风景“全面屏”。在面宽打造上,华瑞城洋房南向总面宽较大约14.8m,比标准羽毛球场还宽1.4m,实现了阳光和风景在室内的更大化引入。

较大约7.4米客厅连接阳台,生活自然延伸。大尺度阳台与客厅无碍相连,IMAX级自然界面提升居家通透性与明亮感之余,阔达阳台可打造成空中花园、孩子玩乐场,生活、观景两不误。

好的改善产品不止于大,更要在空间规划中契合不同家庭结构,华瑞城创新打造“N+1”灵动空间,使房子真正实现“为人服务”。
接下来,让我们对照(建面约)175㎡洋房户型图,模拟一下不同家庭的居住状态。

(建面约)175㎡户型图
对于二孩家庭来说,夫妻与孩子各自拥有独立房间,有助于孩子独立性格的养成;北向空闲房间可做多种功能性改造,如健身房、收藏室等,也可做客房,以招待亲朋好友的到访。

(建面约)175㎡户型图
如果是三代同堂的二孩家庭或三孩家庭,家人各得一方私属休憩空间,宽厅可变空间,可打造一间书房或琴房,丰富大人及孩子的日常生活。

(建面约)175㎡户型图
针对三代同堂的三孩家庭,宽厅可变空间可打造成独立卧室,实现家人各得其所。


(建面约)175㎡户型图
多变实用的N+1户型,可根据不同家庭需求,对功能布局进行灵活调整,以实现空间的较大化利用。

和谐友爱的家庭离不开沟通和陪伴,特别是三孩家庭,怎样给予每个孩子公平的关注、妥善安排老人的陪护问题等都至关重要。综合良性家庭成长需求,理想的人居空间应更注重家庭成员的沟通互动功能。

华瑞城深谙此道,在户型设计中,以家庭关系的互动和社交为思路,采用独特和创新的方式,将玄关、客厅、厨房、阳台等公共空间连接起来,形成较大约84㎡的“LDKB”空间,一面是款待亲朋的门面担当,一面给予家庭沟通与陪伴足够的物理承载。
(建面约)175㎡户型图
一体化阔达空间里,华瑞城更以洄游式动线,将家庭动区与静区分开,合理居家生活动线之余,为小朋友释放了更多自由奔跑的活动空间。

作为“居家生活的延伸”,社区空间在当前快节奏的生活中扮演着重要角色。全龄段儿童乐园为孩子们的快乐成长保驾护航,鲜氧与活力兼具的健身场域是中青年业主的解压场,长者颐养空间丰盈着老年人的日常生活......一站式、多层次生活场景的社区园林,能满足不同年龄层的休闲需求,增强家庭幸福感。

作为一座现代主义美学住区,华瑞城在园林营造上,将当代人心中的自然与诗意轻轻地种在了社区花园里,浮光流影、观林听风、光影镜池、绿意童梦......每一境风景都如它的名字般,令人动容。

园林规划图
美的感官之上,华瑞城以“一环两轴八境”为骨架,在诗意流淌的公园式园林中注入了健康跑道、儿童玩乐区、青年健身区以及长者休闲区等全龄化功能区,借由一个个动人的日常场景,将孩提的欢笑、青年的活力、长者的絮语融入社区的生态画卷里,打造全家庭自然欢乐场。


如果说户型和园林在三孩家庭眼中已然无可挑剔,生态新城核芯全维高质配套则是华瑞城理想人居的加分项。

项目1.5公里生活圈内涵盖了理想生活所需的所有美好元素:滨河湿地公园、军部公园、绿带公园鸟语花香、鲜氧沁脾;沂州古城内吃住行、游购娱举步畅享;北京路、南京路、西安路无界畅达北城新区......自然与繁华交融,生活与美好无界。

对于三孩家庭来说,教育是择居的重中之重,华瑞城与军部街小学、三十五中东校区仅一路之隔,社区内规划幼儿园,公立塔尖教育与国际视野并行,幼儿园到初中一站式优质教育资源,是每一个三孩家庭都难以忽略的优选项。

三孩时代,是推动房地产行业新一轮变革和发展的时代,也是检验一个楼盘产品力的时代,品质与匠心为柬,美好与理想以待,华科·华瑞城建筑面积约175-188㎡全生命周期洋房,恭迎品鉴!
免责声明:
1.本资料中的图片、文字、数据仅供参考,不构成要约内容,最终结果均以政府批准的文件及买卖双方最终签订的商品买卖合同为准。
2.本宣传资料中对于项目周边环境、交通、教育及其他配套设施的介绍,旨在提供相关的信息,不意味着本公司对此作出的承诺。
3.本宣传资料图片源自网络,版权归原作者所有,本文只作为引用,如原作者表明身份要求本公司停止使用该素材的,请及时与本司联系删除。
声明:本文由入驻焦点开放平台的作者撰写,除焦点官方账号外,观点仅代表作者本人,不代表焦点立场。


